作者: 后勤物资采购办公室 来源: 后勤物资采购办公室 编辑: 黄勍 发布时间: 2023-11-27 点击数: 2202
根据负压楼手术室工作需要,需采购不锈钢洗手池4个,现发布采购信息,诚邀各生产厂家或其经销公司前来参加洽谈采购。有关信息发布如下:
一、项目预算
项目预算为27440.00元(含安装、运输、拆除等一切费用)。
备注:报价不能高于预算总价,否则按无效报价处理。
二、总体技术要求:
数量:4个
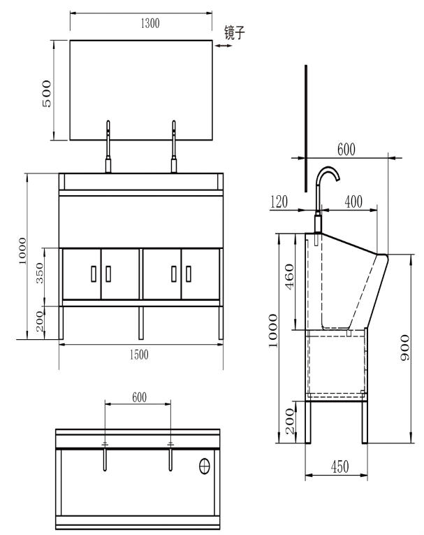
规格型号:1500*600*1000
池底离地面20cm,有防溅设施,池壁光滑无死角、无接缝。有洗手液、消毒液装置区域,洗眼装置,每个刷手池含2个水龙头(脚踏式开关),热水、镜子等全套附件。面板为1.2mm304不锈钢,主柱为1.5mm304不锈钢。中标后需现地复尺确认。
参考图:


三、报名材料
(一)产品(服务)方面
1、产品方案、报价清单并加盖公章。
2、洗手池的相关资料,性能参数特点介绍、相关证书等材料。
3、产品质保、售后服务承诺。
4、类似项目建设案例及近期成交价格,需提供合同复印件及发票复印件。
5、联系人的姓名、职务、电话。
(二)企业资质方面
1、企业营业执照、税务登记证、组织机构代码证(以上资料复印件加盖公章,若报价人已办理三证合一,则只需提供营业执照)。
2、法人授权委托书(原件加盖公章及法人代表印章或签名)
3、产品销售授权书复印件加盖公章
四、评分标准
|
评审标准 |
|
|
技术参数响应程度 (30分) |
根据供应商对采购需求响应程度进行评分: 全部满足采购需求的技术要求中的条款内容的,得30分; 条款中其中一个数据出现负偏离的(劣于本文件产品技术参数),扣2分,本项目分数扣完为止,不出现负分。 |
|
供货、售后保证(20分) |
根据投标供应商有特色的个性服务承诺,能够承诺保证产品质量,供货工期,并制定管理质量控制措施,作出违约责任等承诺以及售后服务方案,最高分20分。 |
|
同类业绩 (10分) |
自 2021年1月1日以来 (以合同签订时间为准) 完成的类似供货项目业绩,每提供一个得 2分,本项最高分10分。注:须提供合同及发票复印件,并加盖投标供应商公章,否则不得分。 |
|
企业信誉(10分) |
投标供应商提供2021年以来与本采购项目相关的认证证书,每提供一个证书复印件得5分,最高得10分。 |
|
报价得分(30 分) |
各有效投标供应商的评标价中,取最低者为基准价(价格分得满分),各有效投标供应商的价格评分统一按照下列公式计算:投标报价得分=(评标基准价/评标价)×价格分。 |
五、有关事项
(一)本信息自发布之日起3个工作日截止,挂网期终止后10个工作日内我院将通知报名单位前来洽谈采购。
(二)从信息发布之日起至挂网期止,有资质的公司均可报名。报名单位请将本信息发布中第三大项的报名资料密封,并在封面注明公司名称及联系方式上门递交或快递“湛江中心人民医院后勤物资采购办公室”。邮寄地址:广东省湛江市赤坎区源珠路236号7号楼一楼109房。邮编:524045。电话:(工作日)0759—3157419(上午8:30-12:00,下午14:30-17:30), 联系人:林老师。
湛江中心人民医院
后勤物资采购办公室
2023年11月27日
地址:广东省湛江市赤坎区源珠路236号(南门)、广东省湛江市赤坎区康宁路(北门)
医院电话:0759—3157999
邮编:524045
医院网址:www.dr0759.cn
版权所有:广东省湛江中心人民医院 Copyright 2008 dr0759.cn All Rights Reserved.网站备案号:粤ICP备11087513号